Sold STC £275,000

Plot 2 Plumbley Hall Farm, Plumbley Lane, Mosborough, Sheffield

A unique opportunity has arisen to acquire development plots at Plumbley Hall Farm, surrounded by countryside and positioned on the outskirts of Mosborough. Three plots are available to purchase separately, which have planning permission granted for the existing barns to be converted into two, four bedroomed homes and a three bedroomed home. A selection of the barns will be demolished as part of the redevelopment.

Read More
Bedrooms -
Bathrooms -
Living Rooms -
SQFT -
Tenure Freehold
Council Tax -

Land for sale in Mosborough, Sheffield

Property Summary

  • Unique Development Opportunities
  • Three Building Plots For Sale
  • Exciting Self-Build or Developer Project
  • Proposed Two, Four Bedroomed Barn Conversions & a Three Bedroomed Residence
  • Plans for Homes Ranging Between 1,550 - 2,000 Sq.Ft
  • Individual Designs and Layouts for Each Plot
  • Allocated Parking
  • Peaceful Semi-Rural Setting, Surrounded by Countryside
  • Pleasant Far-Reaching Views and Walks from the Doorstep
  • Planning Ref: 24/00027/FUL

Property Information

A unique opportunity has arisen to acquire development plots at Plumbley Hall Farm, surrounded by countryside and positioned on the outskirts of Mosborough. Three plots are available to purchase separately, which have planning permission granted for the existing barns to be converted into two, four bedroomed homes and a three bedroomed home. A selection of the barns will be demolished as part of the redevelopment.

Plot 2 Plot 2
Plot 2 Plot 2

Plot 2

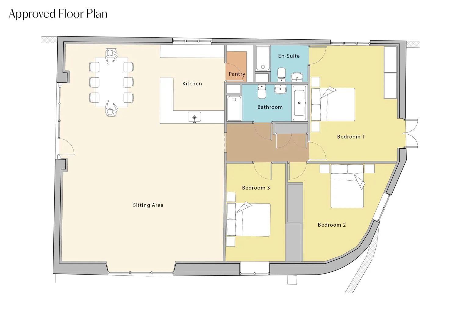
With plans to construct a three bedroomed detached residence spanning approximately 1,550 sq.ft. Plot 2 will feature a fabulous open plan living kitchen, a generously proportioned master bedroom suite, two additional double bedrooms and a family bathroom.

Wrapping around two sides of the property will be the garden, which will provide access to the primary entrance of the home. The allocated parking for Plot 2 will be within the adjacent shared driveway and will include three parking spaces. Plot 2 will also have a right of way over the second driveway to the north to gain entry to a bin store.

Plot 2 Elevations
Plot 2
Plumbley Hall Farm
Site Plan

Accessible from two entry points off Plumbley Lane, this exciting scheme combines a picturesque semi-rural setting with consciously selected materials and modern layouts to create distinctive barn conversions. Specified materials in the plans include reclaimed slate and standing seam zinc roofs, vertical Yorkshire boarding cladding and for the properties to be built in stone or brick. Due to the plots being offered to the market for the purchaser to construct, a blank canvas is provided for internal material choices to be completely customised to the new owners taste.

Full planning permission details can be found on Sheffield City Council website with a reference number of 24/00027/FUL. The site will have two separate driveways, which will be shared amongst the relevant plots with allocated parking set for each house. There is also a fourth plot within the site, however this is not offered to the market.

Located on the edge of Mosborough, Plumbley Hall Farm has good access to Mosborough’s amenities such as public houses and shops. Additional amenities can be found at Eckington and Halfway, including schools and supermarkets. From the site, there are bridleways and footpaths, which take you through lovely countryside scenery towards Ridgeway, Mosborough and Eckington. The M1 and M18 motorway networks are conveniently accessible and the Peak District can be reached within a short drive.

Viewings

Strictly by appointment with one of our sales consultants.

Note

Whilst we aim to make these particulars as accurate as possible, please be aware that they have been composed for guidance purposes only. Therefore, the details within should not be relied on as being factually accurate and do not form part of an offer or contract. All measurements are approximate. None of the services, fittings or appliances (if any), heating installations, plumbing or electrical systems have been tested and therefore no warranty can be given as to their working ability. All photography is for illustration purposes only.

How Much is your
Property Worth?

Curious about the value of your current property? Get a free, no-obligation valuation and see how much you could sell for in today's market.

Mortgage Calculator

£4,013 Monthly Repayments

These results are for a repayment mortgage and are only intended as a guide. Make sure you obtain accurate figures from your lender before committing to any mortgage. Your home may be repossessed if you do not keep up repayments on a mortgage.

Stamp Duty Calculator

£90,750 From April 2025

This calculation is only a guide. We can't give financial advice, so always check with an adviser. Valid from April 2025, it applies to UK residents buying residential properties in England and Northern Ireland. It doesn't apply if you're buying through a company.

close icon

Arrange a Viewing

Please fill in the form below and we will call you to arrange a viewing at your convenience.

Your Address
Property to View