£2,695,000

Carsick Hill Way, Ranmoor, Sheffield

A very rare opportunity to acquire an exquisite seven double bedroom, seven bathroom detached residence. Occupying an enviable, private plot of over half an acre in Sheffield’s highly sought-after neighbourhood of Ranmoor, The Quarters is a fine example of stunning period architecture, retaining a plethora of magnificent character features inside and out.

Read More
Bedrooms 7
Bathrooms 7
Living Rooms 5
sqft 7,334
Tenure Freehold
Council Tax E

7 bedroom Detached House for sale in Ranmoor, Sheffield

Property Summary

  • An Exemplary Seven Double Bedroom, Seven Bathroom Residence
  • Showcasing a Wealth of Original Charm with Many Magnificent Period Features
  • Over 6,600 Square Feet of Family Accommodation, Set Across Three Floors
  • Outstanding Open Plan Living Kitchen, Filled with Natural Light
  • Bespoke Breakfast Kitchen by My Fathers Heart with Siemens Appliances
  • Three Grand Reception Rooms with Stunning Fireplace Surrounds, Plus a Useful Study
  • Fabulous Games Room and an Architecturally Designed Glazed Link, Providing a Secondary Entrance
  • Beautifully Landscaped South-Facing Gardens, Incorporating Various Seating Terraces and an Array of Established Planting
  • Peacefully Positioned within Over Half an Acre of Private Grounds, Accessed by a Gated Driveway

Property Information

A very rare opportunity to acquire an exquisite seven double bedroom, seven bathroom detached residence. Occupying an enviable, private plot of over half an acre in Sheffield’s highly sought-after neighbourhood of Ranmoor, The Quarters is a fine example of stunning period architecture, retaining a plethora of magnificent character features inside and out.

Exterior and Gardens Exterior and Gardens

Dating back to 1915, this substantial family home spans upwards of 6,600 square feet, covering three floors, plus a basement level. Throughout the property are a host of beautiful period characteristics, such as high ceilings, large bay windows, silver handles and finger plates on the original doors, some leaded glazing with stained glass decorations, heavy oak beams and wall panelling.

Exterior and Gardens
Exterior and Gardens
Secondary Entrance Hall
Breakfast Kitchen

The sense of grandeur is immediately noticeable upon entering the intercom operated gate from Carsick Hill Way. An extensive block paved driveway leads down to the home and its striking façade, where double arched doors are found, inviting you into the entrance vestibule.

Connected to the entrance hall through an original door with coat of arms and 1915 date stamp stained glass, the hall showcases an impressive dark-stain oak staircase and a feature arch into the dining room. The Quarters provides three substantial reception rooms, including a grand drawing room with two gritstone/brick fireplaces adorned by oak mantels. In addition, there is superb study, perfect for working from home or completing schoolwork. The heart of the home is undoubtedly the open plan living kitchen, extended by the current owners to create a cohesive space for modern family living. Within the living kitchen is a bespoke breakfast kitchen by My Fathers Heart that contains a range of integrated Siemens appliances and an adjacent, bright living room. Effortlessly transitioning the living kitchen to a useful utility room, lobby and integral triple garage with a fabulous games room above, is a contemporary glazed link, adding a stylish contrast to the traditional architecture.

The first floor is home to an exceptionally spacious master bedroom suite, complete with a well-appointed en-suite bathroom, dressing room and versatile gym space with potential for a variety of uses. Three further bedrooms, one with an en-suite, sit on the same floor, along with a luxurious family bathroom. On the second floor are two bedroom suites, an additional double bedroom and a fully tiled bathroom.

The grounds of The Quarters are what make this home truly special. Fully enclosed to provide exclusivity and security, the expansive south-facing gardens are located to two sides of the property. A pleasant seating terrace spans the width of the rear elevation, allowing ample room for comfortable seating to entertain and enjoy alfresco dining. Situated to one corner of the garden is another patio, neatly bordered by ornamental hedging and accompanied by a lovely summerhouse that is equipped with light and power.

The Quarters is located in the highly desirable area of Ranmoor with convenient access to local amenities including public houses and shops. More amenities can be found very close by in Fulwood and Broomhill, comprising supermarkets, restaurants and cafes. There is highly regarded independent and state schooling available within the surrounding areas, and Sheffield’s private and NHS hospitals are reachable within a short drive. A variety of outdoor spaces can be enjoyed locally, such as Endcliffe Park, Bingham Park, and for sport lovers, there is Hallamshire Golf Club and Fulwood Sports Club. The Peak District is also reachable within a short journey.

The property briefly comprises of on the ground floor: Entrance vestibule, cloakroom, WC, entrance hall, drawing room, dining room, hallway, study, sitting room, living kitchen, stairway to basement level, secondary entrance hall, utility room, wet room, integral triple garage and lobby.

On the first floor: Games room. Landing, bedroom 2, bedroom 2 en-suite bathroom, bedroom 3, bedroom 4, family bathroom, linen cupboard, master bedroom, master hallway, storage cupboard, master en-suite bathroom, master dressing room and gymnasium.

On the second floor: Landing, storage cupboard, bedroom 5, bedroom 5 en-suite shower room, bedroom 7, bedroom 6, bedroom 6 en-suite shower room and bathroom.

Basement level: Cellar.


Ground Floor

Double wooden arched doors with glazed panels open to the:

Entrance Vestibule

With two, curved stone steps rising to the original wooden door with glazed side panels, which opens to the entrance hall and has a leaded glazed panel that depicts a stained glass coat of arms and the construction date of 1915. Also having a flush light point, exposed stone walls and tiled flooring with an inset mat well. A door with an obscured glazed internal window above opens to the cloakroom.

Cloakroom

2.35m x 1.90m

Having a front facing leaded obscured glazed window, recessed lighting, partially panelled walls, central heating radiator and tiled flooring. A door opens to the WC.

WC

Having a front facing leaded obscured glazed window, recessed light point, partially panelled walls, chrome heated towel rail and tiled flooring. There is a Duravit suite in white, which comprises a low-level WC and a pedestal wash hand basin with an Axor Starck chrome mixer tap.

Entrance Hall Entrance Hall

Entrance Hall

Filled with a plethora of period features and providing a warm welcome to the home. Containing heavy timber beams, recessed lighting, a wall mounted light point, a central heating radiator and tiled flooring. A door opens to the drawing room. A feature arch adorned by glazed panels to each side and decorative stained glass panels above leads into the dining room. A door with obscured stained glass panels also opens to the hallway.

Drawing Room Drawing Room

Drawing Room

8.62m x 5.40m

A grand reception room with side and rear facing timber triple glazed bay windows and a side facing timber triple glazed panel. There are decorative mouldings to the ceiling, flush light points, recessed lighting, oak panelling to the walls, central heating radiators, TV/aerial cabling and engineered oak flooring. The focal points of the room are the two coal effect gas fires, set beneath beautiful oak mantels with gritstone/brick surrounds and gritstone hearths. A door opens to the dining room.

Dining Room Dining Room

Dining Room

4.53m x 3.90m

A fabulous dining room, ideal for hosting family and friends. Having rear facing timber triple glazed leaded windows, coved ceiling, pendant light point, central heating radiator and oak flooring. The focal point of the room is the coal effect gas fire with an oak mantel and a limestone surround/hearth. A hardwood door with triple glazed panels and matching side panels opens to the rear seating terrace. A door opens to the sitting room.

From the entrance hall, a door with obscured stained glass panels opens to the:

Hallway Hallway

Hallway

Having wall mounted light points and tiled flooring. Timber doors with obscured stained glass panels open to the study and living kitchen. A door also opens to the sitting room. A staircase with hand rails provides another point of entry to the first floor landing.

Study

3.66m x 2.62m

Appointed with fitted shelving by My Fathers Heart, the study has front facing timber double glazed windows, recessed lighting, central heating radiator and data points.

Sitting Room Sitting Room

Sitting Room

5.44m x 4.53m

Sunlight streams through a rear facing timber triple glazed bay window, creating a wonderful environment for relaxation. The sitting room has a coved ceiling, timber beams with arched features, recessed lighting and built-in ceiling speakers. Also having low oak panelling to the walls, built-in book shelving, central heating radiators and oak flooring. The focal point of the room is the coal effect gas fire with a large oak mantel and a limestone surround/hearth. A timber door with glazed panels opens to the living kitchen.

Living Kitchen Living Kitchen

Living Kitchen

8.75m x 8.54m

An exceptional living kitchen, extended by the current owners, resulting in a bright open plan space that is cohesive for modern family lifestyles.

Breakfast Kitchen Breakfast Kitchen

Breakfast Kitchen

A stunning breakfast kitchen with bespoke cabinetry by My Fathers Heart, fitted with high-quality materials and appliances. Having a side facing timber triple glazed bay window, side facing triple double glazed window, recessed lighting and oak herringbone flooring with under floor heating. There is a comprehensive range of fitted base and drawer units, incorporating matching granite work surfaces, upstands and two inset 1.0 bowl Franke stainless steel sinks with a chrome mixer tap. The focal point of the breakfast kitchen is the sizeable central island, which provides additional storage and incorporates a matching granite work surface with a Zip Hydrotap that has the facilities for boiling and chilled water. The integrated appliances are by Siemens and include a four-ring gas hob with a wok burner and an extractor hood above, two Studioline fan assisted ovens, a Siemens warming drawer and a Siemens dishwasher. There is space/provision for a freestanding fridge/freezer. Double hardwood doors with double glazed panels open to the rear seating terrace. Two wide openings effortlessly connect to the living room.

Living Room Living Room

Living Room

A bright and airy room with feature side facing triple glazed panels, recessed lighting, built-in ceiling speakers, wall mounted light points and oak herringbone flooring with under floor heating. A timber door opens to a stairway that leads down to the basement level. A sliding hardwood door with a glazed panel and matching side panel also opens to the secondary entrance hall.

Stairway

Having a front facing timber double glazed window, fully tiled walls and a stone staircase to the basement level.


Basement Level

Cellar

4.90m x 3.90m

Having light, fully tiled walls, fitted shelving, a stone slab table and power.

Ground Floor Continued

A sliding hardwood door with a glazed panel and a matching side panel opens to the:

Secondary Entrance Hall Secondary Entrance Hall

Secondary Entrance Hall

5.04m x 2.80m

A contemporary glazed link, the secondary entrance hall is arranged in two tiers with wall mounted light points and tiled flooring. Timber door opens to the utility room, integral triple garage and lobby. A timber door with glazed panels also opens to the front of the property.

Utility Room Utility Room

Utility Room

4.76m x 3.80m

Having side facing timber double glazed windows, recessed lighting, extractor fan, chrome heated towel rail and tiled flooring. There is a range of fitted base/wall and drawer units, incorporating matching work surfaces, tiled splash backs and an inset 1.0 bowl stainless steel sink with a chrome mixer tap. There is space/provision for a washing machine, a tumble dryer and an additional under-counter appliance. A timber door opens to the wet room.

Wet Room Wet Room

Wet Room

A useful downstairs wet room with recessed lighting, an extractor fan, chrome heated towel rail and tiled flooring. A Duravit suite in white comprises a low-level WC and a pedestal wash hand basin with an Axor Starck chrome mixer tap and a tiled splash back. To one corner, there is a wet room shower area with a fitted shower, an additional hand shower facility and a glazed screen.

Integral Triple Garage

8.11m x 5.97m

Having three electric up-and-over doors, front and side facing timber glazed windows, light, power and fully tiled walls. The garage houses two Vaillant boilers and a hot water cylinder. A timber door opens to the secondary entrance hall.

Lobby

Having recessed lighting and tiled flooring. Steps lead down to a hardwood door with a double glazed panel and a matching panel above, which opens to the left side of the property.

From the secondary entrance hall, a staircase with hand rails and a glazed balustrade rises to the:


First Floor

Games Room Games Room

Games Room

8.38m x 6.00m

An excellent space for entertaining with side facing timber double glazed windows, a side facing timber double glazed triangular panel, recessed lighting and a feature pendant light point. Also having built-in ceiling speakers, wall mounted light points, central heating radiators, TV/aerial cabling and engineered oak flooring. There is a range of fitted oak furniture, incorporating shelving and cupboards. Behind the furniture is a timber door which would open to the gymnasium if the furniture was removed. Access can be gained to eaves storage.

Ground Floor Continued

From the entrance hall, an impressive original staircase with double-width hand rails, heavy balustrading, front facing leaded glazed panels with stained glass and wall mounted light points rises to the:


First Floor

Landing Landing

Landing

Having recessed lighting, wall mounted light points and a central heating radiator. Timber doors with decorative architraves open to bedroom 2, bedroom 3, bedroom 4, family bathroom, linen cupboard and master bedroom. At the opposite end of the landing, there is a secondary staircase with a front facing timber double glazed window and timber hand rails, which leads down to the hallway.

Bedroom 2 Bedroom 2

Bedroom 2

4.27m x 4.00m

A sizeable double bedroom suite with a side facing leaded glazed window featuring original handles, recessed lighting, wall mounted light point, central heating radiator, data point and a TV/aerial point. A timber door opens to the bedroom 2 en-suite bathroom.

Bedroom 2 En-Suite Bathroom Bedroom 2 En-Suite Bathroom

Bedroom 2 En-Suite Bathroom

A stylish en-suite bathroom with a front facing leaded obscured glazed window featuring original handles, recessed lighting, central heating radiator and an illuminated vanity mirror. The walls are partially tiled and there is a Smedbo chrome heated towel rail and a tiled floor. A Duravit suite in white comprises a wall mounted WC and a pedestal wash hand basin with an Axor Starck mixer tap. Set to one corner of the bathroom is a panelled bath with an Axor Starck chrome mixer tap, a fitted Axor Starck shower and a folding glazed screen.

Bedroom 3 Bedroom 3

Bedroom 3

5.52m x 4.57m

Another large bedroom with a side facing leaded glazed window featuring original handles, rear facing leaded glazed panel, recessed lighting, wall mounted light point and central heating radiators.

Bedroom 4 Bedroom 4

Bedroom 4

4.57m x 3.90m

A fabulous double bedroom filled with natural light. Having a rear facing leaded glazed window featuring original handles, recessed lighting, wall mounted light point and a central heating radiator. There is a range of fitted furniture, incorporating short hanging and shelving.

Family Bathroom Family Bathroom

Family Bathroom

A relaxing sanctuary with front facing timber double glazed obscured windows, recessed lighting, extractor fan, partially tiled walls, chrome heated towel rail and tiled flooring with under floor heating. There is a suite, which comprises of wall mounted WC and a Utopia wash hand basin with an Axor Starck chrome mixer tap and storage beneath. Also having a freestanding bath with an Axor Starck chrome mixer tap and a hand shower facility. To one corner, is a walk-in shower enclosure with a recessed tiled shelves, a fitted Axor Starck shower and two glazed screens.

Linen Cupboard

Having a front facing timber obscured glazed internal panel, flush light point, wall mounted light point and fitted shelving.

Master Bedroom Master Bedroom

Master Bedroom

5.46m x 4.57m

An exceptionally spacious master bedroom with a rear facing leaded glazed window featuring original handles, recessed lighting, central heating radiator, TV/aerial point and a data point. An opening gives access to the master hallway.

Master Hallway

Having recessed lighting and timber doors opening to a storage cupboard, the master en-suite bathroom and the master dressing room.

Storage Cupboard

Having a flush light point and housing the under floor heating valves. Access can be gained to eaves storage.

Master En-Suite Bathroom Master En-Suite Bathroom

Master En-Suite Bathroom

A large, luxurious en-suite bathroom that is fully tiled. Having a rear facing timber double glazed obscured triangular panel, recessed lighting, extractor fan, chrome heated towel rails and under floor heating. There is a suite in white, which comprises a low-level WC and a Duravit wash hand basin with an Axor Starck chrome mixer tap and a towel rail beneath. Also having a freestanding Duravit bath with an Axor Starck chrome mixer tap and a hand shower facility. To one wall, is a double-width walk-in shower with a fitted Mira shower and a glazed screen.

Master Dressing Room Master Dressing Room

Master Dressing Room

6.39m x 3.85m

Offering an extensive space for storage with a side facing timber double glazed triangular panel, a front facing timber double glazed obscured window, recessed lighting and under floor heating. There is a range of fitted furniture, incorporating short/long hanging, shelving and drawers. A wide opening leads into the gymnasium.

Gymnasium

4.31m x 3.64m

Currently used as a gymnasium, however it could be utilised as a second dressing room. Having a side facing timber double glazed triangular window, recessed lighting, Daikin air conditioning unit and under floor heating.

From the landing, the staircase continues to the:


Second Floor

Landing

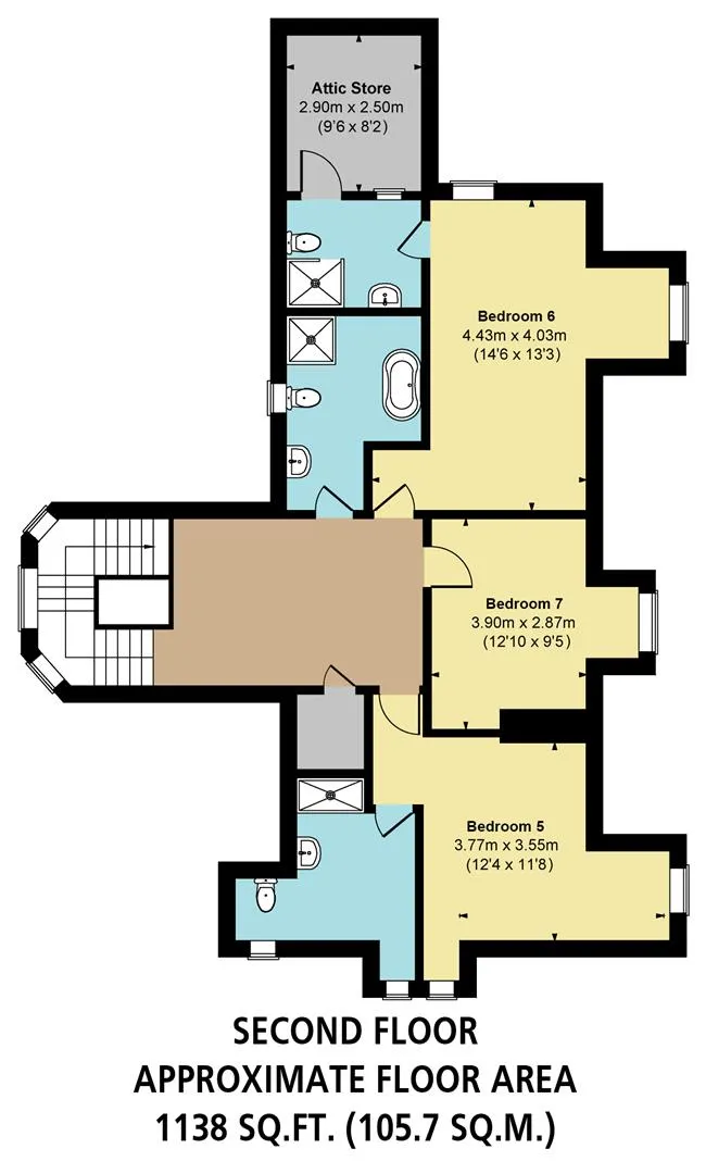
Having front facing leaded glazed panels, recessed lighting, a wall mounted light point and a central heating radiator. Timber doors open to the storage cupboard, bedroom 5, bedroom 7, bedroom 6 and bathroom. Access can also be gained to a loft space.

Storage Cupboard

Having a flush light point and fitted shelving.

Bedroom 5

3.77m x 3.55m

A spacious bedroom suite with a side facing timber double glazed window, a rear facing double glazed diamond panel and recessed lighting. Also having a wall mounted light point, central heating radiator, TV/aerial point and a data point. A timber door opens to the bedroom 5 en-suite shower room.

Bedroom 5 En-Suite Shower Room

A well-proportioned shower room with side facing timber double glazed panels, recessed lighting, extractor fan, partially tiled walls, chrome heated towel rail and tiled flooring. A suite in white comprises a low-level WC and a pedestal wash hand basin with a chrome mixer tap. To one corner, there is a walk-in shower with a fitted rain head shower, an additional hand shower facility and a glazed screen.

Bedroom 7 Bedroom 7

Bedroom 7

3.90m x 2.87m

A seventh double bedroom with a rear facing timber double glazed window, recessed lighting, wall mounted light point, central heating radiator, TV/aerial point and a data point.

Bedroom 6 Bedroom 6

Bedroom 6

4.43m x 4.03m

Another generously sized suite with a feature rear facing timber double glazed diamond panel, side facing timber double glazed window and recessed lighting. Also having a wall mounted light point, central heating radiator, TV/aerial point and a data point. A timber door opens to the bedroom 6 en-suite shower room.

Bedroom 6 En-Suite Shower Room Bedroom 6 En-Suite Shower Room

Bedroom 6 En-Suite Shower Room

Being fully tiled and having a side facing timber double glazed obscured window, recessed lighting, extractor fan and a chrome heated towel rail. There is a suite in white, which comprises a low-level WC and a pedestal wash hand basin with a chrome mixer tap. To one corner, is a walk-in shower with a fitted Grohe shower and a glazed screen. Access can be gained to attic storage.

Bathroom Bathroom

Bathroom

Being fully tiled and having a Velux roof window, recessed lighting, extractor fan, and a chrome heated towel rail. There is a suite in white, which comprises a low-level WC and a pedestal wash hand basin with a chrome mixer tap. Also having a freestanding bath with a chrome mixer tap and a hand shower facility. To one corner, there is a shower enclosure with a fitted Grohe shower and a glazed screen.

Exterior and Gardens Exterior and Gardens

Exterior and Gardens

From Carsick Hill Way, an intercom operated, electric gate opens to The Quarters. A block paved driveway that is flanked by established rockery borders incorporating trees and shrubs leads down to the front of the property.

Exterior and Gardens Exterior and Gardens

To the front, the block paved driveway provides extensive parking for several vehicles and has exterior lighting, a rockery border with trees and shrubs and a large, raised stone planter containing specimen planting. Access can be gained to the main entrance door, secondary entrance hall and integral triple garage.

From the driveway, a block paved path leads to the right side of the property, where there is exterior lighting, an external power point and a lawn with mature trees and shrubs. Double wrought iron pedestrian gates open to the rear of the property.

Exterior and Gardens Exterior and Gardens

To the rear, is a pleasant block paved seating terrace, which benefits from a south-facing aspect and has exterior lighting and external power points. Access can be gained to the dining room and breakfast kitchen.

Stone flagged steps lead down to a garden that is mainly laid to lawn with raised stone planters containing an array of established trees and shrubs. A wide opening leads to a block paved path, which connects via stone steps back up to the terrace and also to stone steps that lead down to a timber pedestrian gate, which opens to Carsick Hill Way.

Exterior and Gardens Exterior and Gardens

The path continues along the left side of the property with exterior lighting, a water tap and a beautifully planted border to one side that is filled with colour. Access can be gained to two useful stores and the lobby.

Exterior and Gardens Exterior and Gardens

Beyond the path at the left side of the property, stone steps lead down to the formal garden, which is mainly laid to lawn and surrounded by dense borders populated by mature trees, shrubs and flowers.

Exterior and Gardens Exterior and Gardens

A block paved path meanders to one corner of the garden, where there is a lovely patio enclosed by ornamental hedging. Access can be gained to the summer house. There is also a fenced enclosure within the garden and a children’s play area.

Summer House

Double timber doors with glazed panels provide access to this peaceful retreat. Having front facing timber glazed panels, side facing timber glazed windows, spot lighting, power and engineered timber flooring.

The path from the left side of the property continues to a block paved area that is ideal for storage and is separated into two by double wrought iron gates. An opening leads back to the front of the property. Stone steps also continue down to the formal garden. A gravelled path with stone edging leads through trees to a composting area and to the patio in the formal garden.

Exterior and Gardens Exterior and Gardens

The exquisitely landscaped gardens of The Quarters are fully enclosed by trees, fencing and stone walling, adding excellent privacy and security to this magnificent family residence.


Additional Details

Tenure

Freehold

Council Tax Band

E

Services

Mains gas, mains electricity, mains water and mains drainage. The broadband is fibre to the cabinet and the mobile signal quality is good.

Rights of Access/Shared Access

None.

Covenants/Easements or Wayleaves and Flood Risk

None and the flood risk is very low.

Conservation Area

The property is located within the Ranmoor conservation area.

Viewings

Strictly by appointment with one of our sales consultants.

Note

Whilst we aim to make these particulars as accurate as possible, please be aware that they have been composed for guidance purposes only. Therefore, the details within should not be relied on as being factually accurate and do not form part of an offer or contract. All measurements are approximate. None of the services, fittings or appliances (if any), heating installations, plumbing or electrical systems have been tested and therefore no warranty can be given as to their working ability. All photography is for illustration purposes only.

How Much is your
Property Worth?

Curious about the value of your current property? Get a free, no-obligation valuation and see how much you could sell for in today's market.

Mortgage Calculator

£4,013 Monthly Repayments

These results are for a repayment mortgage and are only intended as a guide. Make sure you obtain accurate figures from your lender before committing to any mortgage. Your home may be repossessed if you do not keep up repayments on a mortgage.

Stamp Duty Calculator

£90,750 From April 2025

This calculation is only a guide. We can't give financial advice, so always check with an adviser. Valid from April 2025, it applies to UK residents buying residential properties in England and Northern Ireland. It doesn't apply if you're buying through a company.

close icon

Arrange a Viewing

Please fill in the form below and we will call you to arrange a viewing at your convenience.

Your Address
Property to View