Sold STC £550,000

Main Road, Higham, Alfreton

Hadfields Barn is a fabulous Grade II listed two double bedroomed home that offers tasteful living spaces and sits within a sizeable 3/4 of an acre plot. Finished to a high standard, this charming property boasts spacious living areas with under floor heating throughout and an extensive, impressive rear garden with a number of outbuildings.

Read More
Bedrooms 2
Bathrooms 2
Living Rooms 2
sqft 1,403
Tenure Freehold
Council Tax D

2 bedroom Semi-Detached House in Higham, Alfreton

Property Summary

  • A Grade II Listed Two Bedroomed Residence with Character
  • Sat Within an Approximate 3/4 Acre Plot
  • Under Floor Heating Throughout the Property
  • Well-Appointed Dining Kitchen with Integrated Appliances
  • Country Style Lounge with a Log Burner
  • Utility Room and Downstairs WC
  • Ground Floor Bedroom with a Mezzanine and a Separate Bathroom
  • First Floor Bedroom and Bathroom
  • Fabulous Garden with a Number of Outbuildings
  • Close to Local Amenities

Property Information

Hadfields Barn is a fabulous Grade II listed two double bedroomed home that offers tasteful living spaces and sits within a sizeable 3/4 of an acre plot. Finished to a high standard, this charming property boasts spacious living areas with under floor heating throughout and an extensive, impressive rear garden with a number of outbuildings.

Exterior and Gardens Exterior and Gardens

Across the ground floor are two large reception rooms, including an excellent, well-appointed dining kitchen and a cosy, country-style lounge with a log burner. There is also a bedroom with a mezzanine and bathroom, ideal for guests or relatives. Completing the ground floor is a useful utility room and WC. To the first floor is a large double bedroom that benefits from ample natural light via Velux roof windows and a further bathroom.

Exterior and Gardens
Dining Kitchen
Exterior and Gardens
Dining Kitchen

Externally, Hadfields Barn sits within a large 3/4 of an acre plot. A large driveway runs down the left side of the property, allowing for off-road parking. To the rear are a number of useful outbuildings and a fabulous garden with a variety of trees, plants and two greenhouses.

Hadfields Barn is located in the village of Higham where there are cafes, a restaurant, a public house and shops. Larger locations, such as Clay Cross and Alfreton, can be reached within a short journey for further amenities. Popular Peak District locations such as Crich and Matlock are also reachable within a reasonable amount of time.

The property briefly comprises on the ground floor: Dining kitchen, back porch, WC, lounge, bathroom 1, bedroom 2 and bedroom 2 mezzanine.

On the first floor: Landing, bedroom 1 and bathroom 2.

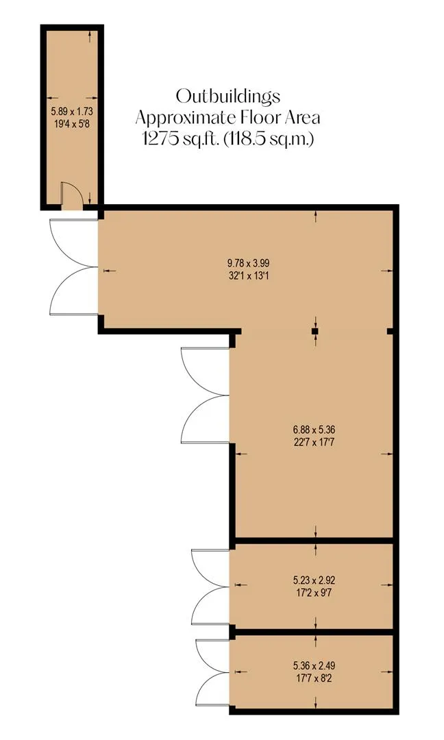
Outbuildings: Storage x5, Greenhouse x2


Ground Floor

A composite door with an obscured double glazed panel and a matching side panel opens to the:

Dining Kitchen Dining Kitchen

Dining Kitchen

6.86m x 4.34m

A well-appointed dining kitchen having side facing timber double glazed windows, recessed lighting, flush light points and tiled flooring with under floor heating. There are a range of fitted base/wall and drawer units incorporating a work surface, tiled splash backs and an inset 1.5 bowl stainless steel sink with a chrome mixer tap. Appliances include a four-ring induction hob, extractor hood and a dish washer. Timber doors open to the back porch and the lounge.

Back Porch

With recessed lighting and tiled flooring with under floor heating. Base and wall units incorporate a work surface. There is the provision for a fridge/freezer, washing machine and tumble dryer. A timber door opens to the WC and a timber door with a glazed panel and matching side panel opens to the rear of the property.

WC

Having a rear facing timber double glazed obscured window, recessed lighting, extractor fan, chrome heated towel rail and tiled flooring with under floor heating. There is a suite in white comprising a low-level WC and a wash hand basin with a chrome mixer tap and storage beneath.

Lounge

6.53m x 3.58m

A fabulous lounge with side facing timber double glazed windows, pendant light points, recessed lighting, TV/aerial point, timber flooring with under floor heating and inset shelving. The focal point of the room is the log burner with a stone hearth. Timber doors open to the bathroom and bedroom 2.

Bathroom 1 Bathroom 1

Bathroom 1

Having a side facing timber double glazed window, recessed lighting, extractor fan, chrome heated towel rail and tiled flooring with under floor heating. A suite in white comprises a low-level WC and a wash hand basin with a chrome mixer tap. There is a panelled bath with a chrome mixer tap and to one corner is a separate shower enclosure with a fitted shower and a glazed screen/door.

Bedroom 2 Bedroom 2

Bedroom 2

3.99m x 3.56m

With Velux roof windows, a pendant light point and timber flooring with under floor heating. A timber door with a double glazed panel opens to the rear of the property. Timber steps rise to the:

Bedroom 2 Mezzanine

Having a flush light point and timber flooring.

From the dining kitchen, a staircase with a timber handrail and balustrading rises to the:


First Floor

Landing Landing

Landing

With a Velux roof window and a pendant light point. There is a decorative fireplace with a stone surround and timber mantle. Timber doors open to the bedroom 1 and bathroom 2.

Bedroom 1 Bedroom 1

Bedroom 1

5.03m × 4.37m

Having a side facing timber double glazed window, Velux roof windows, pendant light point, TV/aerial point and under floor heating. Timber double doors with double glazed panels open to the Juliet balcony overlooking the rear of the property.

Bathroom 2 Bathroom 2

Bathroom 2

With a Velux roof window, front and side facing timber double glazed obscured windows, recessed lighting and tiled flooring with under floor heating. There is a suite in white comprising a low-level WC and a wash hand basin with a chrome mixer tap. To one corner is a separate shower enclosure with a fitted shower and a glazed screen/door.

Exterior and Gardens

From Main Road, a driveway runs along the left side of the property where there is off-road parking for multiple vehicles and exterior lighting. Access can be gained to the dining kitchen.

A large vehicular gate opens to the rear of the property where a gravel path runs to both the left and right sides. Access can be gained to the utility room.

Within the plot are five outbuildings.

Outbuilding 1

Outbuilding 1

To the left of the outbuilding, the path expands into a large driveway where there are four further outbuildings, currently used for storage.

Various Outbuildings x4 Various Outbuildings x4

Various Outbuildings x4

All useful areas for storage.

Beyond the driveway is a large garden that is mainly laid to lawn wwith a plethora of fruit trees, mature trees, mature plants and two greenhouses.

The garden is fully enclosed by mature hedging, mature trees and fencing.


Additional Details

Tenure

Freehold.

Council Tax Band

D.

Services

Mains gas, mains electric, mains water and mains drainage. The mobile signal is moderate.

Rights of Access/Shared Access

None.

Covenants/Easements or Wayleaves and Flood Risk

None and the flood risk is very low.

Additional Information

The property is Grade II listed and is in a conservation area.

How Much is your
Property Worth?

Curious about the value of your current property? Get a free, no-obligation valuation and see how much you could sell for in today's market.

Mortgage Calculator

£4,013 Monthly Repayments

These results are for a repayment mortgage and are only intended as a guide. Make sure you obtain accurate figures from your lender before committing to any mortgage. Your home may be repossessed if you do not keep up repayments on a mortgage.

Stamp Duty Calculator

£90,750 From April 2025

This calculation is only a guide. We can't give financial advice, so always check with an adviser. Valid from April 2025, it applies to UK residents buying residential properties in England and Northern Ireland. It doesn't apply if you're buying through a company.

close icon

Arrange a Viewing

Please fill in the form below and we will call you to arrange a viewing at your convenience.

Your Address
Property to View