Sold STC £1,995,000

Dore Road, Dore, Sheffield

Offering a superb opportunity for a wide variety of purchasers, welcome to the magnificent 168 Dore Road. This contemporary five bedroom, six bathroom residence is set over 5,000 sq.ft. and is wonderfully appointed for modern-day living. With luxurious, light-filled interiors, multiple reception rooms and an outstanding rear garden that boasts a pool and outdoor kitchen, this incredible home is ideal for a growing family and is close to local amenities.

Read More
Bedrooms 5
Bathrooms 6
Living Rooms 4
sqft 5,575
Tenure Freehold
Council Tax H

5 bedroom Detached House in Dore, Sheffield

Property Summary

  • A Striking Five Double Bedroomed Detached Residence Sitting within a Large Plot on one of Sheffield’s most Prestigious Roads
  • Located in the Heart of a Highly Sought-After Area of Sheffield
  • Superbly Appointed for Modern Family Living with Under Floor Heating, Air Conditioning and an In-Built Centrally Controlled Speaker System to Most Rooms
  • Adorned by Natural Light Throughout
  • Showpiece Dining Kitchen with Gaggenau and Miele Integrated Appliances and a Fabulous Bar Ideal for Entertaining
  • Sumptuous Lounge with a Feature Media Wall
  • Lower Ground Floor with a Changing/Shower Room, Gym and Luxury Cinema Room
  • Lavish Open Plan Master Bedroom Suite and Four Additional Bedroom Suites, Three with Juliet Balconies
  • Delightful Exterior with Off-Road Parking to the Front and a Pool and Outdoor Kitchen to the Rear
  • Close to an Abundance of Local Amenities and Excellent Local Schools

Property Information

Offering a superb opportunity for a wide variety of purchasers, welcome to the magnificent 168 Dore Road. This contemporary five bedroom, six bathroom residence is set over 5,000 sq.ft. and is wonderfully appointed for modern-day living. With luxurious, light-filled interiors, multiple reception rooms and an outstanding rear garden that boasts a pool and outdoor kitchen, this incredible home is ideal for a growing family and is close to local amenities.

Exterior and Gardens Exterior and Gardens

Setting the tone for this stunning sanctuary is the bright, welcoming entrance hall that is filled with ample natural light and has a patterned feature wall. The first of four reception rooms is the generously sized lounge with a feature media wall, which is a flexible area to either unwind or entertain and has floor-to-ceiling aluminium double glazed panels.

Lounge
Exterior and Gardens
Dining Kitchen
Lounge

Being the heart of the home, the dining kitchen with high-specification integrated appliances such as Gaggenau and Miele, flows seamlessly into the bar, which is purpose-built for hosting and year-round entertaining. Adjacent to the kitchen is a well-appointed office with a balcony overlooking the front of the property and completing the ground floor is the high-ceiling WC and utility room.

Adding to the spacious feel of the home, the lower ground floor offers both practical space and an additional living space. Firstly, there is a tandem double garage that can be used for storage or parking and a gym that has the benefit of having a separate changing/shower room. The fourth reception room is the well-equipped, purpose-built cinema room.

The first floor houses the bedrooms, firstly, a sumptuous, open-plan master suite comprising the bedroom, an open connection to the en-suite bathroom with a Jacuzzi and a dressing room. There are an additional four bedroom suites, allowing for spacious family living.

Based in a highly sought-after area of Sheffield, 168 Dore Road is set back from the road behind a private electric-operated gate. The front of the home is striking, creating a lasting impression. Sitting within an enviable plot, the rear garden has been modernised and split into different sections, including a heated swimming pool, an outdoor kitchen with the provision for appliances and a lawned area with a wooden climbing frame.

The property is situated within walking distance to the amenities of Dore village, incorporating shops, cafes, public houses, restaurants and excellent local schooling. Also within walking distance is the Dore train station, making for ideal commutes to Manchester, Leeds and York. The Peak District National Park is a short drive away for visiting local villages and a host of countryside walking trails.

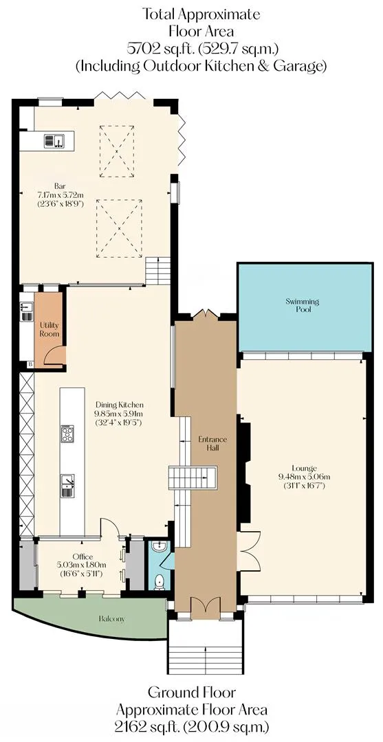
The property briefly comprises of on the ground floor: Entrance hall, WC, lounge, dining kitchen, office, balcony, utility room and bar.

On the lower ground floor: Hallway, tandem double garage, plant room, changing/shower room, comms cupboard, gymnasium, inner hallway, cinema room and storage room.

On the first floor: Landing, master bedroom, master en-suite bathroom, master dressing room, bedroom 5, bedroom 5 Juliet balcony, bedroom 5 en-suite shower room, bedroom 2, bedroom 2 Juliet balcony, bedroom 2 en-suite shower room, bedroom 3, bedroom 3 Juliet balcony, bedroom 3 en-suite bathroom, bedroom 4 and bedroom 4 en-suite shower room.


Ground Floor

Double heavy oak doors open to the:

Entrance Hall

Offering a warm welcome and having front, side and rear facing aluminium double glazed panels, pendant light points, patterned feature wall and tiled flooring with under floor heating. An oak door opens to the WC and double oak doors open to the lounge. A wide opening also leads into the lounge. Tiled steps with glazed balustrading rise to the dining kitchen. Double aluminium doors with double glazed panels open to the rear of the property.

WC

Being fully tiled with recessed lighting, extractor fan, recessed shelf with illuminated mirror and under floor heating. There is a Duravit suite in white, which comprises a wall mounted WC and a wash hand basin with a chrome mixer tap and a fitted mirror above.

Lounge Lounge

Lounge

9.48m x 5.06m

A superb lounge having front and rear facing floor-to-ceiling aluminium double glazed panels, recessed lighting, air conditioning vents, built-in wall speakers and tiled flooring with under floor heating. There is a feature media wall, incorporating a contemporary Faber gas fire and having the provision for a wall mounted television with TV/aerial cabling. A wide opening leads into the entrance hall.

Dining Kitchen Dining Kitchen

Dining Kitchen

9.85m x 5.91m

Having a side facing floor-to-ceiling aluminium double glazed panel, pendant light points, recessed lighting, air conditioning vents, built-in ceiling speakers, data/component points and tiled flooring with under floor heating. There is a range of fitted wall units and a central island, incorporating a Corian work surface that provides space for up to six chairs, plinth lighting and an inset Franke 1.5 bowl stainless steel sink with a chrome Quooker tap, Franke soap dispenser and an Insinkerator waste disposal. Appliances include a Gaggenau four-ring induction hob with built-in extractors, Miele fan assisted oven, Miele steam oven, Miele microwave oven, three Miele warming drawers, Miele coffee machine, Gaggenau full-height fridge, Gaggenau full-height freezer, two full-height Gaggenau wine coolers and a Bosch dishwasher. A glazed door with matching side panels opens to the office. An oak door opens to the utility room. A tiled staircase with glazed balustrading descends to the bar.

Office

5.03m x 1.80m

A well-appointed office with recessed lighting, air conditioning vent and tiled flooring with under floor heating. Fitted furniture incorporates shelving with a TV/aerial point. Two sets of aluminium sliding doors with double glazed panels open to the balcony.

Balcony

A porcelain tiled terrace enclosed by glazed balustrading, stainless steel handrails and having recessed lighting. The balcony overlooks the front of the property.

Utility Room

With a rear facing floor-to-ceiling aluminium double glazed obscured panel, recessed lighting and tiled flooring with under floor heating. There is a range of fitted base/wall and drawer units, incorporating a Corian work surface, tiled splash back, under-counter lighting and an inset 1.0 bowl Franke stainless steel sink with a chrome mixer tap. There is space/provision for a washing machine and a tumble dryer. A cupboard houses the Keston boiler.

From the dining kitchen, a tiled staircase with glazed balustrading leads down to the:

Bar Bar

Bar

7.17m x 5.72m

A beautiful space ideal for entertaining having two aluminium double glazed roof lanterns, rear facing aluminium double glazed windows and side and rear facing aluminium double glazed panels. Also having recessed lighting, pendant light points, built-in ceiling speakers, TV/aerial cabling, tiled flooring with under floor heating and up-lighters. To one corner is a fitted bar incorporating base units, Corian work surfaces, an inset 1.0 bowl sink with a chrome mixer tap and an inset ice trough. There is a double and a single Caple wine cooler. Above the bar is illuminated, glazed shelving. Aluminium bi-folding doors with double glazed panels open to the rear of the property.

From the entrance hall, a staircase leads down to the:


Lower Ground Floor

Hallway

With recessed lighting and oak flooring with under floor heating. Oak doors open to the integral double garage, changing/shower room, comms cupboard, gymnasium and inner hallway.

Tandem Double Garage

11.91m x 5.14m

Having an electric up-and-over door, light and power. There is the provision for an electric vehicle charging point. A cupboard houses the fuse box. An oak door opens to the inner hallway. A timber door also opens to the plant room.

Plant Room

3.27m x 2.29m

Housing the swimming pool plant and having light.

Changing/Shower Room Changing/Shower Room

Changing/Shower Room

With LED lighting, extractor fan, full-height vanity mirror and oak flooring with under floor heating. A suite in white comprises a Duravit wall mounted WC and a wall mounted wash hand basin with a chrome mixer tap. The wet room shower area is fully tiled and has a fitted shower.

Comms Cupboard

Having oak flooring and housing the comms equipment.

Gymnasium Gymnasium

Gymnasium

4.60m x 4.46m

A fantastic gymnasium with front facing aluminium double glazed panels, LED lighting, built-in wall speakers, air conditioning vent, fitted vanity mirrors and oak flooring with under floor heating. There is the provision within a fitted unit for a wall mounted television and for TV/aerial cabling. An oak door opens to the cinema room.

From the hallway, an oak door opens to the:

Inner Hallway

Having recessed lighting and oak flooring with under floor heating. Oak doors open to the cinema room, storage room and tandem double garage.

Cinema Room Cinema Room

Cinema Room

4.46m x 4.08m

A cosy cinema room with LED lighting, air conditioning, down-lighters to each side of the room, built-in wall speakers and under floor heating. A fitted media wall has a wall mounted television with TV/aerial cabling, a shelving unit beneath and built-in speakers. An oak door opens to the gymnasium.

Storage Room

4.73m x 2.30m

Having light and tiled flooring with under floor heating. The storage room houses the Mega Flo hot water cylinder and under floor heating valves.


Ground Floor Continued

From the entrance hall, a staircase with glazed balustrading rises to the:


First Floor

Landing Landing

Landing

With side facing aluminium double glazed windows, pendant light point, air conditioning vents, decorative recess with lighting and under floor heating. Two storage cupboards house shelving. Oak doors open to the master bedroom, bedroom 5, bedroom 4, bedroom 3 and bedroom 2.

Master Bedroom Master Bedroom

Master Bedroom

5.14m x 3.86m

A light-filled open plan master suite having a bedroom area, en-suite and dressing room. Having rear facing floor-to-ceiling aluminium double glazed panels, recessed lighting, air conditioning vent, a built-in ceiling speaker and under floor heating. There is a range of fitted furniture, incorporating short/long hanging. Two openings lead into the master en-suite bathroom.

Master En-Suite Bathroom Master En-Suite Bathroom

Master En-Suite Bathroom

With a side facing aluminium double glazed obscured window, pendant light point, extractor fans, shaver point, chrome heated towel rail, recessed down-lighters and tiled flooring with under floor heating. There is a glazed cubicle with a Duravit wall mounted WC. Within the en-suite is a wall mounted vanity unit, incorporating a wash hand basin with a chrome mixer tap, storage beneath and a fitted vanity mirror. A sunken, two-person Jacuzzi bath includes a waterfall bath filler, hand shower facility and spa jets. A walk-in, fully glazed shower enclosure has a rain fall shower, body jets and a hand shower facility. An opening leads into the master dressing room.

Master Dressing Room Master Dressing Room

Master Dressing Room

5.14m x 2.70m

Having front facing floor-to-ceiling aluminium double glazed panels, recessed lighting, built-in ceiling speaker, air conditioning vent, wall mounted light point and under floor heating. Fitted furniture includes short hanging storage, drawers, shelving and a separate vanity table with a drawer and an illuminated vanity mirror.

Bedroom 5 Bedroom 5

Bedroom 5

4.47m x 2.78m

A double bedroom suite with a rear facing aluminium double glazed window, recessed lighting, air conditioning vent, TV/aerial/data point, TV/aerial cabling and under floor heating. An oak pocket sliding door opens to the bedroom 5 en-suite shower room. An aluminium sliding door with a double glazed panel opens to the bedroom 5 Juliet balcony. Access can also be gained to the loft. .

Bedroom 5 Juliet Balcony

Having glazed/stainless steel balustrading and overlooking the rear garden.

Bedroom 5 En-Suite Shower Room

Being fully tiled and having recessed lighting, extractor fan, illuminated vanity mirror, shaver point and under floor heating. A suite in white comprises a Duravit wall mounted WC and a wall mounted wash hand basin with a chrome mixer tap and storage beneath. To one corner is a separate shower enclosure with a fitted shower and a glazed screen/door.

Bedroom 2 Bedroom 2

Bedroom 2

5.62m x 4.30m

A further double bedroom suite with a rear facing aluminium double glazed panel, recessed lighting, air conditioning vent, a wall mounted light point and under floor heating. There is a range of fitted furniture, incorporating short hanging, shelving, drawers and a TV/aerial point. An oak door opens to the bedroom 2 en-suite shower room. An aluminium sliding door with a double glazed panel and a matching side panel opens to the bedroom 2 Juliet balcony.

Bedroom 2 Juliet Balcony

Having glazed/stainless steel balustrading and overlooking the rear garden.

Bedroom 2 En-Suite Shower Room Bedroom 2 En-Suite Shower Room

Bedroom 2 En-Suite Shower Room

Being fully tiled with a side facing aluminium double glazed obscured window, recessed lighting, extractor fan, wall mounted light point, chrome heated towel rail, shaver point and under floor heating. There is a suite in white, which comprises a Duravit wall mounted WC and a wall mounted GD Porcelanosa wash hand basin with a chrome mixer tap, storage beneath and a fitted vanity mirror above. A shower enclosure includes a fitted shower and a glazed screen/door.

Bedroom 3 Bedroom 3

Bedroom 3

4.72m x 4.60m

Another double bedroom suite having recessed lighting, a wall mounted light point, air conditioning vent and under floor heating. There is a range of fitted furniture, incorporating short hanging, shelving, drawers and a TV/aerial point. An oak door opens to the bedroom 3 en-suite bathroom. Two sets of aluminium sliding doors with double glazed panels open to the bedroom 3 Juliet balcony.

Bedroom 3 Juliet Balcony

With glazed/stainless steel balustrading, lighting and overlooking the front of the property.

Bedroom 3 En-Suite Bathroom Bedroom 3 En-Suite Bathroom

Bedroom 3 En-Suite Bathroom

Being fully tiled and having a side facing aluminium double glazed obscured window, recessed lighting, wall mounted light point, extractor fan, chrome heated towel rail, shaver point and under floor heating. A suite in white comprises a Duravit wall mounted WC and a wall mounted GD Porcelanosa wash hand basin with a chrome mixer tap, storage beneath and a fitted vanity mirror above. To one corner is a panelled bath with a chrome mixer tap and a fitted shower.

Bedroom 4 Bedroom 4

Bedroom 4

3.90m x 2.55m

A sizeable double bedroom with front and side facing aluminium double glazed windows, pendant light point, recessed lighting, air conditioning vent and under floor heating. An oak pocket sliding door opens to the bedroom 4 en-suite shower room.

Bedroom 4 En-Suite Shower Room Bedroom 4 En-Suite Shower Room

Bedroom 4 En-Suite Shower Room

Being fully tiled and having recessed lighting, extractor fan, shaver point and under floor heating. There is a suite in white, which comprises a Duravit wall mounted WC and a wall mounted wash hand basin with a chrome mixer tap, storage beneath and an illuminated vanity mirror above. To one wall is a shower enclosure with a fitted shower and a glazed screen/door.

Exterior and Gardens

From Dore Road, an intercom operated electric gate opens to the front of the property. A driveway provides parking for several vehicles and has exterior lighting and a water tap. Access can be gained to the tandem double garage. Also having a garden that is mainly laid to lawn with mature trees. Porcelain tiled steps with glazed/stainless steel balustrading rises to the main entrance door.

Exterior and Gardens Exterior and Gardens

To the rear of the property is a porcelain flagged seating terrace with exterior lighting and speakers. There is a sunken, heated swimming pool with stainless steel entry steps and lighting. The pool has been made to a high standard and is cost-effective, and has a built-in counter-current system for swimming. Access can be gained to the entrance hall.

Exterior and Gardens Exterior and Gardens

Steps lead down to an extensive granite flagged seating terrace with decorative setts and providing various areas for comfortable seating. The terrace has exterior lighting, two raised artificial lawns and a U-shaped bench, ideal for a firepit area. To one corner is an outdoor kitchen. Access can be gained to the bar.

Outdoor Kitchen Outdoor Kitchen

Outdoor Kitchen

6.00m x 3.70m

Sitting beneath an aluminium pergola with a tilting roof, the outdoor kitchen has a flagged terrace, exterior lighting, speakers, Veito patio heaters and an external power point. There is a U-shaped barbecue area with a granite flagged surface that has space for a freestanding barbecue. A seating area with a granite work surface provides space for up to four chairs.

Exterior and Gardens Exterior and Gardens

Towards the bottom of the plot is a garden that is mainly laid to lawn with a wooden climbing frame and a raised timber planter containing mature trees and exterior lighting. The garden is fully enclosed by timber fencing and mature hedging.


Additional Details

Tenure

Freehold

Tenure Details

There is a small portion of land beyond the garden which is leased to the property by Sheffield City Council and the ground rent is £3 per year.

Council Tax Band

H

Services

Mains gas, mains electric, mains water and mains drainage. The broadband is fibre and the mobile signal quality is good.

Rights of Access/Shared Access

None.

Flood Risk

The flood risk is very low.

Viewings

Viewings are strictly by appointment with one of our Sales Consultants.

Note

Whilst we aim to make these particulars as accurate as possible, please be aware that they have been composed for guidance purposes only. Therefore, the details within should not be relied on as being factually accurate and do not form part of an offer or contract. All measurements are approximate. None of the services, fittings or appliances (if any), heating installations, plumbing or electrical systems have been tested and therefore no warranty can be given as to their working ability. All photography is for illustration purposes only.

How Much is your
Property Worth?

Curious about the value of your current property? Get a free, no-obligation valuation and see how much you could sell for in today's market.

Mortgage Calculator

£4,013 Monthly Repayments

These results are for a repayment mortgage and are only intended as a guide. Make sure you obtain accurate figures from your lender before committing to any mortgage. Your home may be repossessed if you do not keep up repayments on a mortgage.

Stamp Duty Calculator

£90,750 From April 2025

This calculation is only a guide. We can't give financial advice, so always check with an adviser. Valid from April 2025, it applies to UK residents buying residential properties in England and Northern Ireland. It doesn't apply if you're buying through a company.

close icon

Arrange a Viewing

Please fill in the form below and we will call you to arrange a viewing at your convenience.

Your Address
Property to View