£1,000,000

Plot at Gooseberry Farm, Holmesfield, Dronfield

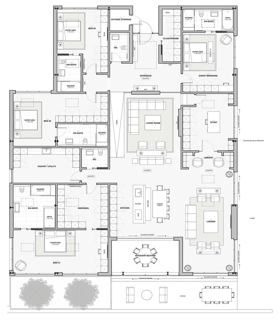
Offered for sale on the edge of the scenic Peak District is this exciting development opportunity, allowing a purchaser to convert an existing steel barn into an exceptional rural residence under Class Q permission. The proposed dwelling would be set across one floor, covering approximately 419 sq.m. and the total plot extends to 2.5 acres, which includes three fully enclosed paddocks.

Read More
Bedrooms -
Bathrooms -
Living Rooms -
acre 2.50
Tenure Freehold
Council Tax G

Land for sale in Holmesfield, Dronfield

Property Summary

  • Offered for Sale is an Exciting Development Opportunity
  • Total Plot Size - Approximately 2.5 Acres
  • Class Q Permission for Conversion of the Existing Steel Barn to Form a Four Bedroomed Detached Home
  • Proposed Residence Planned to Encompass 419 Sq.m, Set Across One Floor
  • Designed with Contemporary Flair to Accommodate Family Living
  • Open Plan Living Kitchen and En-Suites to All Bedrooms
  • Planning Reference Number: 23/01021/CUPDMB)
  • Extensive Off-Road Parking with Gated Access
  • Included within the Land are Three Paddocks
  • Located on the Edge of the Scenic Peak District and Close to Baslow and Chatsworth

Property Information

Offered for sale on the edge of the scenic Peak District is this exciting development opportunity, allowing a purchaser to convert an existing steel barn into an exceptional rural residence under Class Q permission. The proposed dwelling would be set across one floor, covering approximately 419 sq.m. and the total plot extends to 2.5 acres, which includes three fully enclosed paddocks.

Plot Boundary Plot Boundary

Forming part of Gooseberry Farm’s current equestrian amenities, the indoor schooling arena (steel barn) would be transformed into a superb detached four en-suite bedroomed home. The plans include a substantial driveway for parking and an access road leading to a sliding electric gate opening to Main Road.

Exterior
Proposed Site Plan
Existing Barn
Existing Elevations

Full plans and details can be found on the North East Derbyshire planning portal under reference number 23/01021/CUPDMB.

Available by separate negotiation is a further 15 (approx) acres, which have gated access to Main Road and Fanshaw Gate Lane. Further information can be provided at request.

The plot is situated with good access to the village of Holmesfield and access to scenic countryside walks from the doorstep. Popular attractions in the Peak District such as Baslow, Chatsworth House and parkland, Bakewell and Hathersage are all reachable within a short drive. Dronfield also offers additional conveniences including shops, supermarkets, restaurants and cafes. Dronfield train station also allows rail journeys to Manchester, Nottingham, Leeds and London.

Viewings

Viewings are strictly by appointment with one of our Sales Consultants.

Note

Whilst we aim to make these particulars as accurate as possible, please be aware that they have been composed for guidance purposes only. Therefore, the details within should not be relied on as being factually accurate and do not form part of an offer or contract. All measurements are approximate. None of the services, fittings or appliances (if any), heating installations, plumbing or electrical systems have been tested and therefore no warranty can be given as to their working ability. All photography is for illustration purposes only.

How Much is your
Property Worth?

Curious about the value of your current property? Get a free, no-obligation valuation and see how much you could sell for in today's market.

Mortgage Calculator

£4,013 Monthly Repayments

These results are for a repayment mortgage and are only intended as a guide. Make sure you obtain accurate figures from your lender before committing to any mortgage. Your home may be repossessed if you do not keep up repayments on a mortgage.

Stamp Duty Calculator

£90,750 From April 2025

This calculation is only a guide. We can't give financial advice, so always check with an adviser. Valid from April 2025, it applies to UK residents buying residential properties in England and Northern Ireland. It doesn't apply if you're buying through a company.

close icon

Arrange a Viewing

Please fill in the form below and we will call you to arrange a viewing at your convenience.

Your Address
Property to View